電磁振動篩簡介
電磁振動篩主要用于包裝工藝流程中,將水泥中的粗顆粒進行分離,以得到合格的水泥粉料。
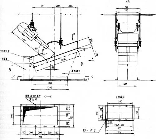
電磁振動篩安裝要點
- 電磁振動篩的電磁振動器有八種安裝角:90°、82.5°、67.5、60°、52.5°、45°、37.5°、30°,使用時可根據產量和篩分精度要求自行調整。
- 圖中前后減振吊鉤距離914系按60°安裝角時的數值。
- 表中生產能力是3×3篩網,60°安裝角的數值,需增大生產能力可換篩網規格或調安裝角。
、
電磁振動篩技術參數
型號 | 篩面層數 | 篩孔尺寸(mm) | 篩面規格(mm) | 進料粒度(mm) | 處理能力(t/h) | 振動頻率(Hz) | 雙振幅(mm) | 電機功率(kg) | 重量(不包括電機)(kg) | 外形尺寸(mm×mm×mmm) |
YZ-924 | 1 | 3-30 | 900×2400 | ≤100 | 8-60 | 13-16 | 7 | 5.5 | 1356 | 2620×1720×1245 |
YZ-1230 | 1 | 3-50 | 1200×3000 | ≤100 | 12-120 | 13-16 | 8 | 5.5 | 750 | 3153×2031×1611 |
2YZ-1230 | 2 | 3-50 | 200×3000 | ≤100 | 12-120 | 13-16 | 8 | 5.5 | 2350 | 3850×2031×1812 |
3YZ-1236 | 3 | 3-50 | 1200×3000 | ≤200 | 15-160 | 13-16 | 8 | 11 | 4290 | 3900×2270×2780 |
2YZ-1542 | 2 | 5-80 | 1500×4200 | ≤200 | 30-230 | 13-16 | 8 | 15 | 5336 | 4400×2610×3680 |
3YZ-1548 | 3 | 5-80 | 1500×4800 | ≤200 | 36-260 | 13-16 | 8 | 15 | 6866 | 5782×2547×3679 |
